
|
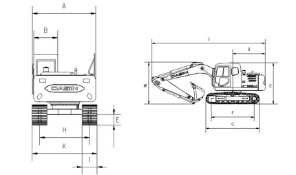
外型尺寸 |
|||
|
A |
上部全宽 |
mm |
2536 |
|
B |
驾驶室全宽 |
mm |
960 |
|
C |
驾驶室全高 |
mm |
2806 |
|
D |
尾部回转半径 |
mm |
2201 |
|
E |
最小离地间隙 |
mm |
412 |
|
F |
导向轮和驱动轮中心距离 |
mm |
2920 |
|
G |
履带长 |
mm |
3639 |
|
H |
带矩 |
mm |
2000 |
|
I |
履带板宽 |
mm |
600 |
|
J |
全长 |
mm |
7706 |
|
K |
配有履带全宽 |
mm |
2600 |
|
M |
全高 |
mm |
2850 |
|
整机参数 |
|||
|
整机重量 |
kg |
14000 |
|
|
斗容 |
m3 |
0.57 |
|
|
发动机 |
型号 |
- |
五十铃 AA-4BG1TCP |
|
额定功率 |
kW |
89.3 |
|
|
额定转速 |
rpm |
2200 |
|
|
排放 |
- |
欧Ⅱ |
|
|
回转速度 |
rpm |
12.96 |
|
|
行走速度(高/低) |
km/h |
5.08/3.17 |
|
|
爬坡能力 |
% |
70 |
|
|
接地比压 |
Mpa |
0.035 |
|
|
铲斗挖掘力 |
kN |
83.4 |
|
|
斗杆挖掘力 |
kN |
62.5 |
|








